找回密码
 注册

微信登录,快人一步

QQ登录

只需一步,快速开始

楼主: msabing

[原创] 新建供应室设计图,请帮忙看看

 火.. [复制链接]
 楼主| 发表于 2009-11-19 12:57 | 显示全部楼层
用一次性的凡士林和石腊油倒是个好办法
回复

使用道具 举报

发表于 2009-11-23 00:45 | 显示全部楼层
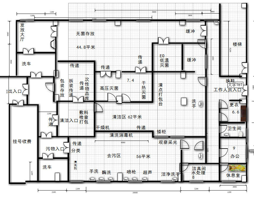
这个图最大的缺陷是小房间太多了,这样空气质量难以控制,对医院感染来说是要尽可能地避免。我把同功能的房间进行重新组合,尽量分区而不是分间。
另外无菌物品存放间,由于面积不充足,可不设缓冲间。在发放区可直接开门,无菌区内的物品与下送车直接交接,即可提高工作效率,也减轻工作人员工作量。双门互锁窗没有必要,反而搞卫生更麻烦。
灭菌器最好双开门,卸载区域留2米的距离即可。
包装的工作区域进行了优化。
外包装的一次性无菌物品可在仓库开箱,不需要另设拆包间。
进入供应室的大门不需要换鞋,自己的鞋在更衣室更衣换鞋。
修改设计图.doc (428 KB, 下载次数: 174) 15# msabing

评分

参与人数 2 +22 收起 理由
xxxxxx666666 + 12 还是大姐大好!
缭绕 + 10 谢谢专家指点!

查看全部评分

回复

使用道具 举报

 楼主| 发表于 2009-11-23 22:44 | 显示全部楼层
风铃老师辛苦深夜回帖,谢谢了,我再重新画一下,我是麻醉科医师,弄好ICU设计图后,看到院长正对供应室设计伤脑筋,这是我主动找的活,哪知道不好干,不干好的话怕后人对我微词,呵呵

评分

参与人数 1 +10 收起 理由
缭绕 + 10 主动找活干的人有前途!

查看全部评分

回复

使用道具 举报

  • 打卡等级:小镇青年
  • 打卡总奖励:388
  • 最近打卡:2025-09-10 14:06:21
发表于 2009-11-23 22:50 | 显示全部楼层
23# msabing

呵呵,你好幸运啊!风玲老师可是制定供应室GB的国家级专家哦!
回复

使用道具 举报

 楼主| 发表于 2009-11-24 01:45 | 显示全部楼层
真是太感谢风铃老师了,可我有几点没弄明白,一次性物品间从哪里进,是从无菌存放区进吗?无菌存放区(如果设缓冲区)和清洁区的洁具可以放在缓冲区吗?受其他资料影响不设杂物间,总觉得会乱,不过确实有空气质量难控制的问题,风铃老师的修改设计估计我们院长看了高兴,少做好多墙,少花好多钱,呵呵,简洁明了实用。
回复

使用道具 举报

发表于 2009-11-24 10:30 | 显示全部楼层
本帖最后由 风玲 于 2009-11-24 15:09 编辑

一次物品仓库从大门口的方向开门。包装区的洁具可以在2台灭菌器之间预留的维修区同时放洁具。面积适当增加一些、有去水和洗地拖的水池就行,可兼顾两区的洁具。
对了,供应室的护士长去哪里了?她应该弄明白才能把工作做好哦.我也要向你学习,一个麻醉的医师,能设计重点科室的平面布局不简单. 25# msabing
回复

使用道具 举报

发表于 2009-11-24 20:28 | 显示全部楼层
能提供一次性凡士林和蜡油厂家吗?谢谢
回复

使用道具 举报

 楼主| 发表于 2009-11-24 20:52 | 显示全部楼层
26# 风玲
我们的供应室护士都是在临床上退下来的,年纪稍长,原供应室又不符合规范,没有参观进修过,知识更新和规范管理都难以与时俱进,我也是找了一大堆的资料图片就开始设计了,很多流程上的东西还不熟悉,还有一些先进的设备使用安装,有些什么要求都不了解,担心将来要反工,可近两天工地上就要打供应室的墙基了,大楼已封顶,供应室在住院大楼的一层,因方案未定,迟迟没有隔墙,现在追得紧了
回复

使用道具 举报

 楼主| 发表于 2009-11-25 00:41 | 显示全部楼层
本帖最后由 msabing 于 2009-11-25 00:53 编辑

gys112501.jpg
回复

使用道具 举报

 楼主| 发表于 2009-11-25 00:54 | 显示全部楼层
gys112502.jpg
回复

使用道具 举报

 楼主| 发表于 2009-11-25 01:01 | 显示全部楼层
清洁区几根大柱子还真是麻烦,发了两种方案,不知哪种更好些,如果说考虑灭菌器的维修,第一张可能要好些,有空间,第二张两个大柱太妨事了,请风铃老师再给看看,谢谢!
回复

使用道具 举报

发表于 2009-11-25 09:37 | 显示全部楼层
31# msabing

Doc5.doc (166.5 KB, 下载次数: 44)

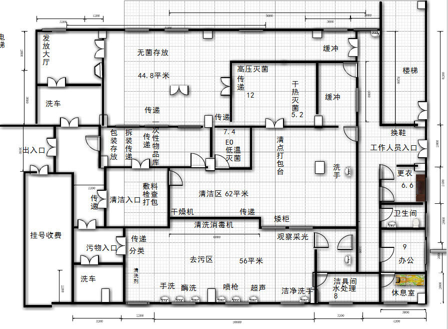
这个是我调整的,建议取消干热灭菌,可以吧EO和高压灭菌放在一起,最大化的扩大打包区面积。
回复

使用道具 举报

发表于 2009-11-25 09:46 | 显示全部楼层
原先的设计方案中,高压灭菌处太拥挤,打包后的敷料、手术器械、还有清洗后的器械都将经过这一区域,不利于实际操作。
另外,高压灭菌室的面积和门一定要大,方便灭菌车的进出。
还是建议购买双门高压灭菌器。

评分

参与人数 1金币 +6 收起 理由
xxxxxx666666 + 6 乐于助人

查看全部评分

回复

使用道具 举报

 楼主| 发表于 2009-11-26 09:02 | 显示全部楼层
催得紧了,今天要交作业了,这可能是最后的定稿了
gys112602.jpg
回复

使用道具 举报

发表于 2009-11-26 09:34 | 显示全部楼层
34# msabing


进入无菌物品存放区的那个缓冲不能取消么?
浪费得太可惜了。人可以从打包区进入无菌物品存放区啊,而且不需要缓冲!
随着工作量的增加,打包区的面积以后怕是不够用哦!
回复

使用道具 举报

 楼主| 发表于 2009-11-26 20:17 | 显示全部楼层
34# msabing


进入无菌物品存放区的那个缓冲不能取消么?
浪费得太可惜了。人可以从打包区进入无菌物品存放区啊,而且不需要缓冲!
随着工作量的增加,打包区的面积以后怕是不够用哦!
zzhap 发表于 2009-11-26 09:34

非常感谢你的建议,EO灭菌是否能和高压灭同室
回复

使用道具 举报

  • 打卡等级:小镇青年
  • 打卡总奖励:388
  • 最近打卡:2025-09-10 14:06:21
发表于 2009-11-26 21:09 | 显示全部楼层
36# msabing
应该可以的。
回复

使用道具 举报

发表于 2009-11-26 21:38 | 显示全部楼层
36# msabing


应该可以。
但考虑到环氧乙烷的危险性,还是最好隔个小房间。
高压灭菌器则不需要单独的房间,因为是爽开门的,一面对着打包区,一面对着无菌存放区就行,而且刚好起到屏障的作用。
回复

使用道具 举报

 楼主| 发表于 2009-11-27 06:54 | 显示全部楼层
干热灭菌或EO灭菌的物品可否通过高压灭菌器传递(当未使用时)
回复

使用道具 举报

 楼主| 发表于 2009-12-1 00:00 | 显示全部楼层
本帖最后由 msabing 于 2009-12-1 00:14 编辑

非常感谢这些天的各位老师的指点,经过反复修改制图,我决定用这张图了,留下了升级空间,以我们目前的供应流程已经非常超前了,手术的器械自己打好送来消毒就行,没有专用电梯手术器械回收到供应室清洗打包不现实,没有双门灭菌器,没有低温、干热消毒机,没有清洗机,没有干燥机,更谈不上洁净供应室了(供应室只有两名老护士上班)等等,说实话我累了,回收发放处全部开门开窗,不想了,再次感谢各位老师的指教!祝论坛越办越好!
供应室113004.jpg
回复

使用道具 举报

您需要登录后才可以回帖 登录 | 注册 |

本版积分规则

关闭

站长推荐上一条 /1 下一条

快速回复 返回顶部 返回列表